Veröffentlicht am: 6.Apr. 2025
Grunddaten:
Neubau
Zustand
Mehrfamilienhaus
Immobilientyp
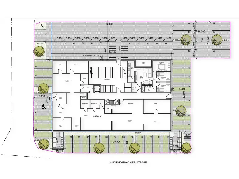
2.118 m²
Wohnfläche gesamt
419 m²
Gewerbefläche
22
Anzahl Wohnungen
60 - 91 m²
Wohnungsgrößen
39
Stellplätze ges.
39
Freistehende
Keine Angabe
Carport
Keine Angabe
Tiefgarage
Wärmepumpe
Heizungsart
SW-Balkone / SW-Terrassen
Balkon / Terrasse
Immobilienbeschreibung:
Unser aktuelles Rochner & Stahl-Neubauprojekt befindet sich in Erlensee. Hier planen wir ein modernes Mehrfamilienhaus und eine Gewerbefläche im Erdgeschoss. Die 2- bis 4-Zimmer-Wohnungen mit Wohnflächen zwischen 60 bis 91 m² sind wie geschaffen für Singles, Paare oder junge Familien, die sich viel Platz, Privatsphäre und individuelle Gestaltungsmöglichkeiten wünschen. Alle Wohneinheiten werden in der bewährten Bauqualität erstellt.
Highlights
Die Lage
22 Wohneinheiten mit Gewerbefläche
Immobilie updated: Juni 1, 2025
Aufrufe: 644




