Grunddaten:
Anlageobjekt
Verkaufstyp
Wohnpark
Immobilientyp
ca. 3.955 m²
Wohnfläche
Keine Angabe
Anzahl Stellplätze
Immobilienbeschreibung:
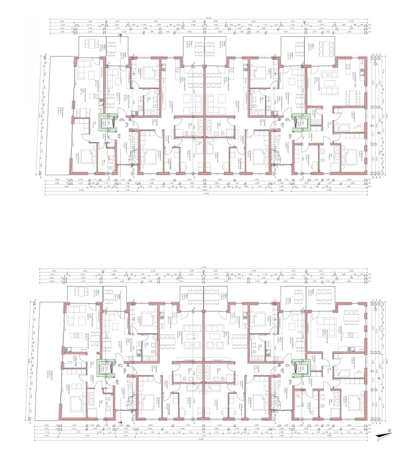
Unser aktuelles Rochner Bau Neubauprojekt befindet sich in Erlenbach am Main. Hier realisieren wir ein modernes Mehrfamilienhaus mit 46 Wohneinheiten. Die 2- bis 5-Zimmer-Wohnungen mit Wohnflächen zwischen 43 und 131 qm sind wie geschaffen für Singles und Paare, die sich viel Platz, Privatsphäre und individuelle Gestaltungsmöglichkeiten wünschen. Hervorzuheben ist der barrierefreie Zugang zu allen Wohnungen über Aufzüge. Dies ermöglicht dort eine Planung und Ausrichtung des Lebensmittelpunktes bis ins hohe Alter. Alle Wohneinheiten werden in der bewährten Bauqualität erstellt.
Der Baubeginn erfolgte im September 2025.
Die Fertigstellung des Rohbaus ist voraussichtlich im Februar 2026.
Highlights
Daten & Fakten:
| Grundstücksfläche | ca. 3.074 m² |
| abzgl. ca. 20m² Abgabe an Energieversorger für Trafostation | |
| Wohnfläche | ca. 3.955 m² |
| Mieteinnahmen pro Monat | |
| 3.955m² x 12,50 € | 49.437,50 € |
| 54 Tiefgaragenstellplätze x 60 € | 3.240 € |
| 23 Außenstellplätze x 25 € | 575 € |
| Summe | 53.252,50 € |
| Mieteinnahmen pro Jahr | 639.030 € |
| Verkaufspreise | |
| Verkaufspreis Wohnflächen | 15.500.000 € |
| Verkaufspreis Tiefgaragenstellplätze (54 x 16.000 €) | 864.000 € |
| Verkaufspreis Außenstellplätze (23 x 5.000 €) | 115.000 € |
| Summe | 16.479.000 € |
| Verkaufspreis 1 | |
| Grundstück, Rohbau, Dach, Spenglerarbeiten, Tiefgarage (unterliegt den Kaufnebenkosten) |
7.479.000 € |
| Verkaufspreis 2 | |
| Ausbau inkl. Malerarbeiten und Bodenbeläge | 9.000.000 € |
| Steuervorteil: 6 Jahre 5% degressive AfA ca. 750.000 € pro Jahr |
Die Lage
46 Wohneinheiten in Erlenbach am Main
Immobilie updated: Apr. 9, 2026
Aufrufe: 607








